Prevor III
Hérouville-en-Vexin / Paris 2025
Adaptation Produktionsstandort PREVOR Dressilk®
Atelier Fouquez in Kooperation mit M. Négron
Auftraggeber PREVOR
Planung Lph 1–4
Hérouville-en-Vexin/ Paris, F 2025-26
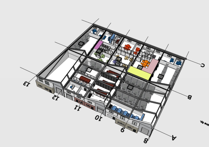
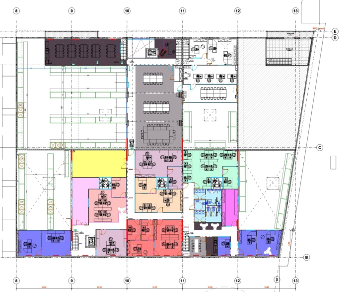
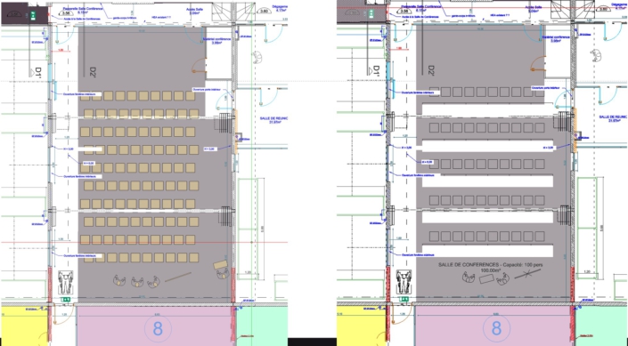
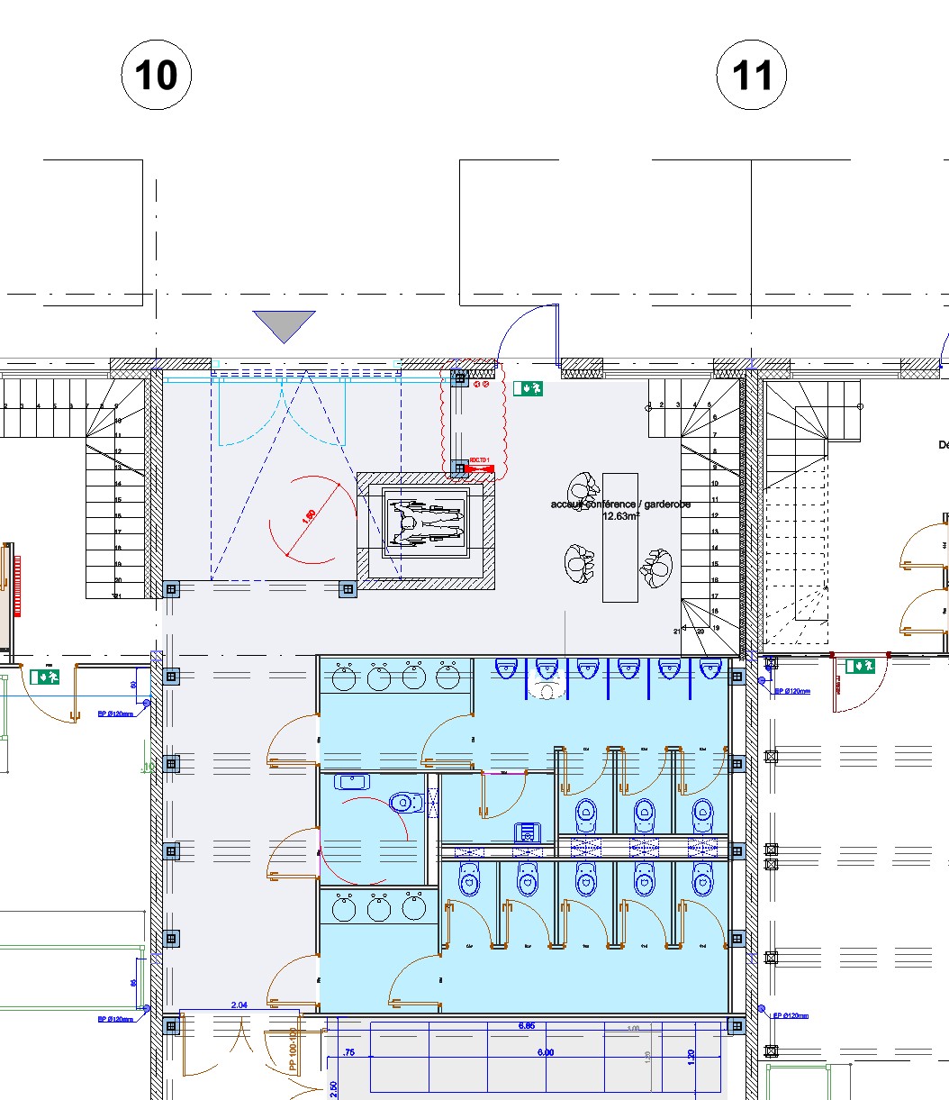
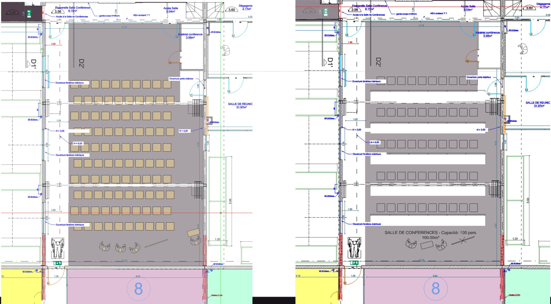
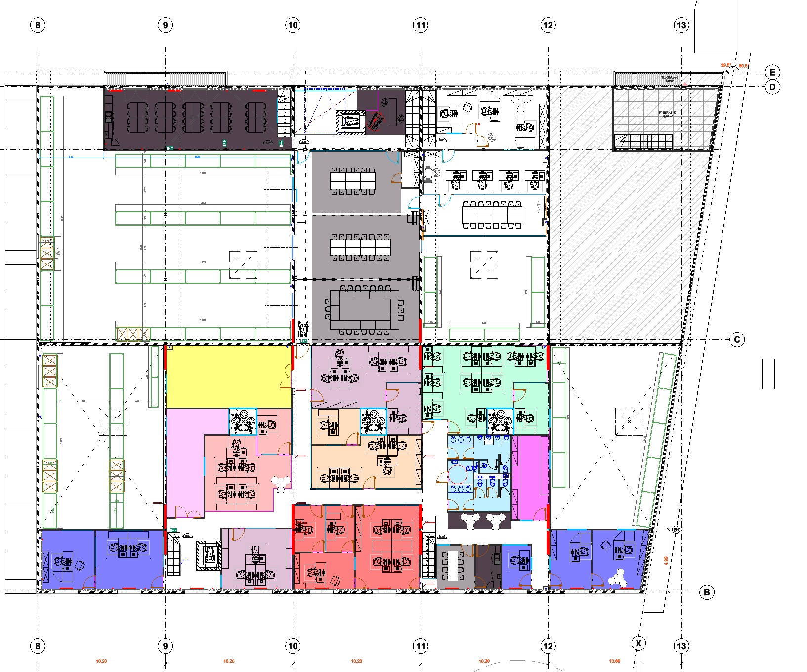
Der große Industrieneubau am Rande einer Kleinstadt in der Nähe von Paris war ursprünglich mit seinen 50 x 40 x 7m in zehn Schotten à 20m Tiefe unterteilt, um hier unterschiedliche, kleinere Firmen nebeneinander anzusiedeln. Die Firma PREVOR hat -bis auf eine- alle Schotten gekauft, um dort ihre neue Abteilung Dressilk® aufzubauen. Die Produktion für dieses innovative, inhouse entwickelte Wundheilungstextil auf Basis von Seide wurde im Erdgeschoß von speziellen Fachplanern geplant. Atelier Fouquez wurde beauftragt im Obergeschoß die elf unterschiedlichen Abteilungen in spezifische Bürobereiche, Prüflabore, Cafeteria, Konferenz- und Schulungsbereiche barrierearm in die Gebäudehülle einzupassen. Dabei wurde auf eine helle, akustisch optimale Raumqualität geachtet, die den Bezug zum Material Seide und der umgebenden Natur ins Gebäude einbindet.


















