Gemeinnützige Werkstätten II
Köln 2025
Gemeinnützige Werkstätten
Atelier Fouquez
Auftraggeber GWK
Planung Lph 1–4
Köln 2025-26
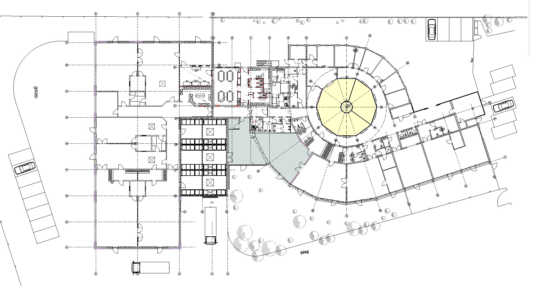
Nach dem erfolgreichen Umbau der Garten-und Landschaftsbauabteilung der GWK am Standort in Rodenkirchen wird Atelier Fouquez erneut beauftragt um wieder im polygonalen Altbaubereich des Standorts die Raumqualitäten für die Arbeitsabläufe anzupassen.
Diesmal ist der Heilpädagogische Arbeitsbereich für eine weitere Gruppe von Beschäftigen umzugestalten. Die Räumlichkeiten befinden sich im Bereich zwischen dem polygonal aufgefächerten Altbau von 1994 und dem kubischen Anbau von 2011. Für die besondere Benutzergruppe mit diversen Einschränkungen gilt es eine Umgebung zu gestalten, die sowohl mit Helligkeit und sanft farbigen Bereichen aktive Tagesabläufe, als auch mit tamisiertem Licht kleinere Rückzugsräume anbieten kann. Der Altbau hat einen hervorragenden Bezug zum Außenraum, der ihm hohe Aufenthaltsqualität mit Blickbeziehungen ins Grüne und viel Licht gibt. Das aufgefächerte Dach und Teile der Fassade müssen in seinen Dämmeigenschaften dem Klimawandel angepasst werden.
Der zentrale Altbaubereich mit dem Speisesaal der Kantine soll vergrößert werden. Das alte, konkav nach innen gestülpte Dach hat aktuell eine drückende, dunkle Atmosphäre. Der Raum ist vor lauter Stützen und Trennscheiben baulich kleinteilig segmentiert. Er soll mit einem neuen, konvex nach oben aufgerichteten Dachstuhl mit umlaufendem Lichtband und einem mittigen Oberlicht eine helle, stützenfreie und zentrale Funktion für die Gemeinschaft aller Beschäftigen im Gebäude wieder bekommen.

















